در میان چشم انداز بکر جنگل های بارانی در نزدیکی شهر لایونیون در جنوب شیلی، معماران استودیو طراحی Diagonal اقامتگاهی ۳×۳ را طراحی می کنند تا تضاد بین هندسه رادیکال و روح ارگانیک سایت را نشان دهند.
به گزارش موبنا، این خانه کوچک و طبیعت به طور یکپارچه با هم ترکیب می شوند و به گونه ای هنرمندانه زیبایی طبیعی محیط را افزایش می دهند. کابین به نحوی طراحی شده است که یک خانه راحت و صمیمی برای استفاده روزانه در اختیار ساکنین قرار دهد. در مجموع پروژه مذکور نه تنها هیچ مزاحمتی برای جنگل های بارانی ایجاد نخواهد کرد، بلکه به محافظت از آنها نیز یاری می رساند.
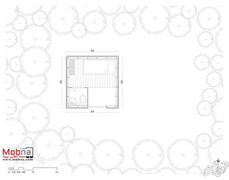
این استراحتگاه از یک طراحی مخصوص «سه مرحله ای» بهره می برد که با تراس به عنوان محلی برای دور هم جمع شدن و لذت بردن از جنگل شروع می شود. طبقه اول یا “طبقه روز” آشپزخانه، اتاق ناهار خوری و اتاق نشیمن را در خود جای می دهد که دارای یک پنجره جلویی با ارتفاع زیاد است.
این طراحی منظره ای خیره کننده از جنگل بارانی را برای ساکنین به ارمغان می آورد. در نهایت، طبقه دوم یا “طبقه خصوصی” شامل اتاق خواب و حمام است که برای صرفه جویی در فضا و ایجاد حریم خصوصی بیشتر تنها از طریق نردبان قابل دسترسی است. همانطور که اشاره شد اقامتگاه جنگل های بارانی شیلی فضایی ۳ در ۳ متر را به خود اختصاص می دهد. مساحت کل فضای ساخت نیز ۱۵ متر مربع گزارش شده است.











